Homestead 6 | 28 Model

Crested Butte Cabin

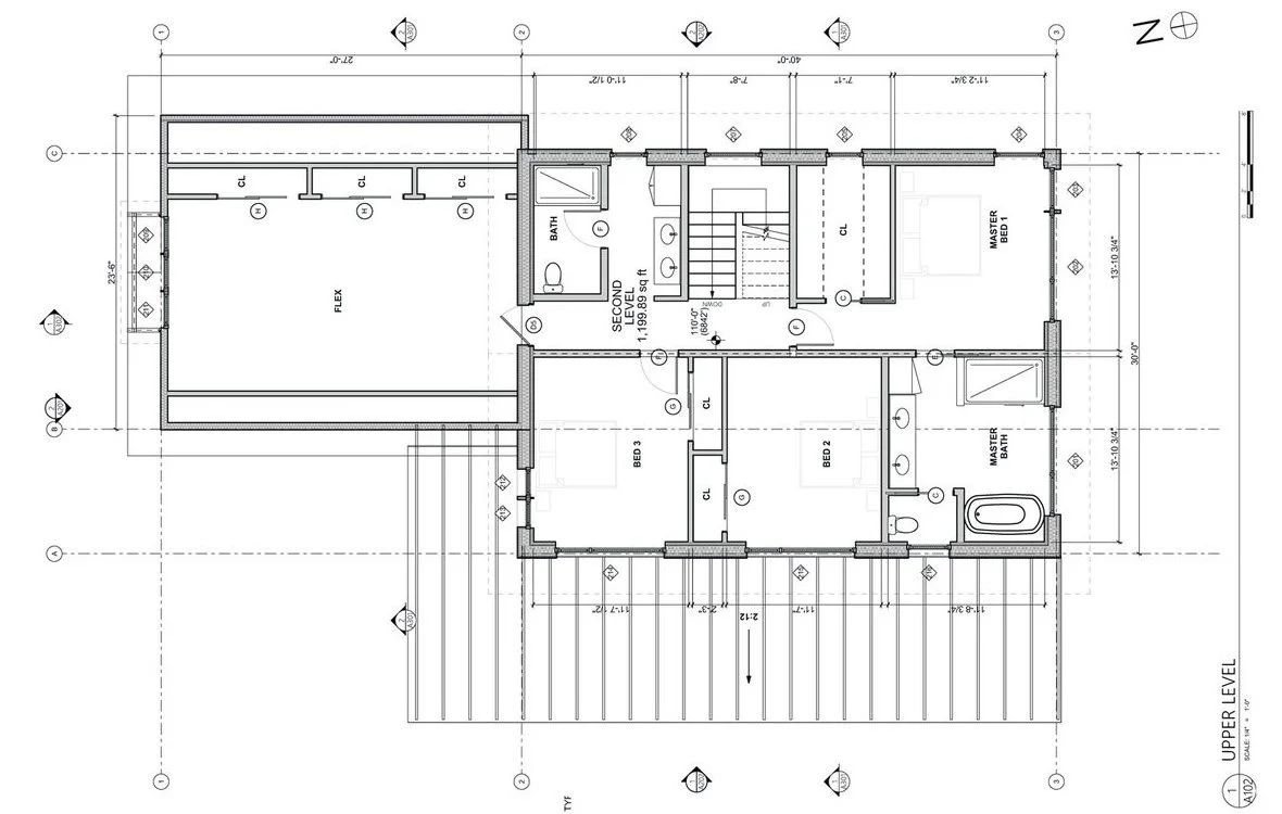
Floorplan
3 bed, 2 bath, attached ADU

Size
2,800 SF

Schedule a Call

Craftsman elegance meets modern convenience in the H6 | 28. The main level is an entertainer's dream with an open living and kitchen area, leading to a wrap-around deck for outdoor gatherings. A tucked-away mudroom connects to the attached garage. Upstairs, three bedrooms, including a spacious master with a bath, offer tranquility. Bonus: a versatile flex space, perfect for an office or additional bedroom. Experience the perfect blend of charm and functionality in this Craftsman-style retreat.

Main Level

The main level of the H6 | 28 has a open living and kitchen area ready for entertaining. Tucked away is a mudroom leading out to the attachage garage. The main level also has a great wrap around deck for all your gatherings or BBQs.

Upper Level

The second level seperate living from sleeping with all of the bedrooms located on this floor. The upper level has three bedrooms with a generous sized master and bath. Bonus the upper floor plan has a flex space for an office, storage, bedroom, ect.

Built off-site in Grand Junction, Colorado.

Assembled in just a few days on site working with an overhead crane and innovative delivery method.

  • Structure & Building Components

    Pre-engineered & Pre-built panels: Walls, floors, and roofs.
    Exterior finishes: Standard options for siding pre-installed in factory.
    Doors & Windows: Triple pane Pre-installed or delivered with the package.
    Insulation: Pre-installed insulation in walls, roof, and floor for energy efficiency.
    Interior walls: Pre-framed or modular walls (without interior finishes, etc.).

    Permitting Assistance & Documentation

    Architectural & engineering plans: Designs with engineering stamps, compliant with building codes.
    Permit support: Basic support for submitting plans to your local building department (though you may need a local contractor for final approval).

    COMING SOON

    Electrical, Plumbing, & HVAC Systems -Bathroom and Mechanical Pod

    Basic plumbing rough-ins: Pre-installed plumbing points for sinks, toilets, and showers.
    HVAC system: A energy efficient electric mini-split heating/cooling system.

    Interior Finishes

    Interior wall finishes: Wood Interior finish.
    Bathroom fixtures: Standard sinks, toilets, showers, and other bathroom fittings.

  • Site Preparation & Foundation

    Grading, excavation, and site preparation: Clearing land, leveling, or dealing with slopes.
    Foundation work: Concrete slabs, crawl spaces, or other types of foundations (must be contracted separately).

    Utilities Hookups

    Connection to municipal utilities: Electrical, water, sewage, or gas hookups to existing service lines on the property.
    Septic systems: If no municipal sewer is available, the installation of septic tanks or systems is not included.

    Customizations

    High-end finishes: Any custom cabinetry, countertops, or high-end flooring/fixtures are not included (standard options are available).
    Custom interior design: Beyond standard layouts and finishes, any custom floor plans or designs are additional.

    Local Permitting Fees & Regulations

    Permit acquisition: Fees for local permits and inspections required by the city or county.
    Zoning assessments: You will need to ensure your lot meets local zoning regulations.

    Landscaping & Exterior Improvements

    Landscaping: Lawn installation, trees, shrubs, or any other landscaping is not included.
    Driveways, sidewalks, and fencing: Additional hardscaping or fencing work.

    Furniture & Appliances

    Appliances: Stoves, refrigerators, washers, and dryers are not included unless specified.
    Furniture: Beds, tables, or any other interior furniture items.
    Kitchen fixtures: Basic cabinets, countertops, and kitchen sink.
    Flooring: Standard options (e.g., laminate, vinyl, etc.).
    Lighting fixtures: Basic lighting options (recessed lighting, etc.).

    Exterior Finishes

    Roofing materials, such as metal or asphalt shingles. Exterior siding, connections required in the field to complete the exterior siding finish.

    Mechanical , Electrical & Plumbing

    Basic plumbing rough-ins: Pre-installed plumbing points for sinks, toilets, and showers.
    HVAC system: A energy efficient electric mini-split heating/cooling system. Electrical wiring, sections for outlets, lighting, and switches. Completing the plumbing installation of rough and finish elements not included in the off site package.

Included in both options:

  • Stamped Architectural drawings, with window & door schedule

  • Stamped Engineering drawings

  • 3D Digital Fabrication model with fabrication drawings

Design Package Estimates

Each model will require Architectural & Engineering for your specific location in addition to the Prefab Package

Architectural & Engineering


$35,000 - $50,000*

Low Design Cost Estimate [no design modifications]

  • (1) round of foundation development

  • (1) round of floorplan development, non-structural

  • Choose from 2 mechanical options; includes (1) round of electrical & plumbing development

  • (1) round of exterior finish development

*Structural changes and interior design not included; prices are based on an average, 2,400 SF home

Custom Design

  • Unlimited development

  • Unlimited development

  • Unlimited development

  • Unlimited design development

$50,000+

*$50,000 + plus; Interior design not included; prices vary based on size, fit & finish

Standard features in each homestead

Your family’s health and well-being—and that of the planet—are non-negotiables.

Schedule a Call

Triple- Pane Windows & Doors


100% Wood-Based Framing


24hr Fresh-Air Ventilation System


Energy-Efficient Heating & Cooling


Multi-Generational Living Spaces