Homestead 2 | 10 Model

Mountain Modern ADU Home

Flexible & Practical

This mountain modern 2 bedroom, 1.5 bath Prefab Accessory Dwelling Unit (ADU) Suite offers a minimalist design with 1,000 square feet of livable space.  

The H2|10 is a thoughtfully designed Colorado prefab home perfect for first-time home buyers seeking an affordable, sustainable, and comfortable living space. Built to Passive House certifiable standards, this model combines energy efficiency with stylish, modern design, making it an ideal choice for eco-conscious buyers. With its compact yet spacious layout, the H2|10 offers an open-concept floor plan that maximizes every square foot, providing ample natural light and reducing utility costs. 

Our naming system is straightforward: "H" for Homestead, the single digit for occupants, and the double digit for square footage

For example, H2 | 10 means it's designed for up to 2 occupants with 1,000 SF of livable space

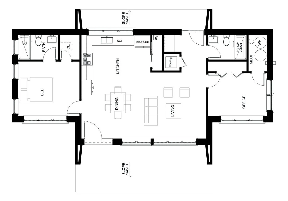
Floorplan
2 bed (or 1 office, 1 bed), 2 bath

We are proud to be at the forefront of bringing passive house, luxury prefab homes to the mountains of Colorado, Utah, Idaho, Arizona, Washington and New Mexico.

Size
1,000 SF ADU

Schedule a Call

Discover a modern masterpiece in this 1,000 square foot prefab home. With a single bedroom, two baths, and a versatile flex space, this home embodies clean, contemporary design.

First-level floor plan

This prefab ADU home is a single-level model featuring one bedroom, flex space, two bathrooms, and an open living and kitchen design.

Standard features in each homestead

Your family’s health and well-being—and that of the planet—are non-negotiables.

Triple- Pane Windows & Doors


100% Wood-Based Framing


24hr Fresh-Air Ventilation System


Energy-Efficient Heating & Cooling


Multi-Generational Living Spaces


Schedule a Call

Built off-site in Grand Junction, Colorado.

This prefab ADU home can be assembled in just a few days on-site working with an overhead crane and innovative delivery method.

  • Structure & Building Components

    Pre-engineered & Pre-built panels: Walls, floors, and roofs for the ADU.
    Exterior finishes: Standard options for siding pre-installed in factory.
    Doors & Windows: Triple pane Pre-installed or delivered with the package.
    Insulation: Pre-installed insulation in walls, roof, and floor for energy efficiency.
    Interior walls: Pre-framed or modular walls (without interior finishes, etc.).

    Permitting Assistance & Documentation

    Architectural & engineering plans: Designs with engineering stamps, compliant with building codes.
    Permit support: Basic support for submitting plans to your local building department (though you may need a local contractor for final approval).

    COMING SOON

    Electrical, Plumbing, & HVAC Systems -Bathroom and Mechanical Pod

    Basic plumbing rough-ins: Pre-installed plumbing points for sinks, toilets, and showers.
    HVAC system: A energy efficient electric mini-split heating/cooling system.

    Interior Finishes

    Interior wall finishes: Wood Interior finish.
    Bathroom fixtures: Standard sinks, toilets, showers, and other bathroom fittings.

  • Site Preparation & Foundation

    Grading, excavation, and site preparation: Clearing land, leveling, or dealing with slopes.
    Foundation work: Concrete slabs, crawl spaces, or other types of foundations (must be contracted separately).

    Utilities Hookups

    Connection to municipal utilities: Electrical, water, sewage, or gas hookups to existing service lines on the property.
    Septic systems: If no municipal sewer is available, the installation of septic tanks or systems is not included.

    Customizations

    High-end finishes: Any custom cabinetry, countertops, or high-end flooring/fixtures are not included (standard options are available).
    Custom interior design: Beyond standard layouts and finishes, any custom floor plans or designs are additional.

    Local Permitting Fees & Regulations

    Permit acquisition: Fees for local permits and inspections required by the city or county.
    Zoning assessments: You will need to ensure your lot meets local zoning regulations.

    Landscaping & Exterior Improvements

    Landscaping: Lawn installation, trees, shrubs, or any other landscaping is not included.
    Driveways, sidewalks, and fencing: Additional hardscaping or fencing work around the ADU.

    Furniture & Appliances

    Appliances: Stoves, refrigerators, washers, and dryers are not included unless specified.
    Furniture: Beds, tables, or any other interior furniture items.
    Kitchen fixtures: Basic cabinets, countertops, and kitchen sink.
    Flooring: Standard options (e.g., laminate, vinyl, etc.).
    Lighting fixtures: Basic lighting options (recessed lighting, etc.).

    Exterior Finishes

    Roofing materials, such as metal or asphalt shingles. Exterior siding, connections required in the field to complete the exterior siding finish.

    Mechanical , Electrical & Plumbing

    Basic plumbing rough-ins: Pre-installed plumbing points for sinks, toilets, and showers.
    HVAC system: A energy efficient electric mini-split heating/cooling system. Electrical wiring, sections for outlets, lighting, and switches. Completing the plumbing installation of rough and finish elements not included in the off site package.